|
 |
fib-03-03.htm
06.2005 |
|
 |
Das Brooktau |
-.- |
|
erschienen in MODELLWERFT 07/2005
Geschützzubehör
... vom Eimer bis zum Brooktau
Zur vorbildgetreuen Nachbildung von Geschützen gehört auch das Geschützzubehör: das
Pulverfaß, der Kugelrahmen, das Brooktau und ... nun, der am Ende beschriebene Bootsriemen ist in
das Thema so hineingerutscht.
Das Brooktau hat die Aufgabe, den Rückstoß des Geschützes abzufangen, damit es keine
Mitschiffsaufbauten zerstört oder noch schlimmer den Kanonier gegenüber plattmacht. Um dein
gerecht zu werden, muß das Brooktau nicht nur bärenstark sein, sondern auch eine ganz bestimmte
Länge haben. Es darf nicht zu lang sein, sonst passiert das eben Beschriebene. Andererseits muß
sich das Geschütz so weit zurückfahren lassen, daß sich der Ladestock in die Bohrung schieben
läßt. Das geschieht meistens, indem der Stock durch die Stückpforte nach außen bewegt und dann
eingeführt wird. Der arme Kanonier, dem dabei die Stange ins Wasser gefallen wäre, hätte sich nur
wünschen können, daß er die Schlacht nicht überlebt. Damit niemand beim Knüpfen des Brooktaues in
eine ähnlich verzweifelte Lage gerät, wird hier ein Weg für die Herstellung des Taus
aufgezeigt.
Abb. 1: Tau auf Blech.
G = Gesamtlänge, F = Fertigmaß, S = Schlaufenlänge
Abb. 2: Brooktau auf Wickelmaschine |
Abb. 3: Kreuzknoten zum Drehbeginn.
H = Halterichtung, D = Drehrichtung |
|
 |
Ablauf |
-.- |
|
- Nachdem man mit einem Probestück die genaue Länge festgelegt hat, wird die benötigte
Stückzahl abgeschnitten.
- Dann werden beide Schlaufenenden um ein 0,5mm-Blech geknickt (Abb. 1).
- Das Aufschieben der Ringe mit Ösen kann nur noch an dieser Stelle vorgenommen werden. Wenn
die Enden erst einmal ausgefranst sind, wird's schwer.
- Beide Enden mit einer Rasierklinge ausfransen (etwa die halbe Länge des umgeknickten Stückes)
und mit etwas Ponal zu einem Fächer formen.
- Solange der Leim noch elastisch ist, werden die beiden Ringe mit Ösen an die geknickte Stelle
gebracht und die Fächerenden mit geringer Leimzugabe um das Seil gelegt und zwischen den Fingern
gerollt.
- Wenn jetzt das Mittelstück abgelängt, ausgefranst und mit Fächern versehen ist, wird es
ähnlich den Schlaufen in der Mitte des Brooktaues angeklebt.
- Aufspannen und umwickeln
- Die Haltewicklungen frei Hand durchzuführen, erfordert so viel Einsatz, daß dabei die Freude
verloren geht. Greifen wir also auf unsere gute alte Wickelmaschine zurück. Zur Aufspannung
werden in diesem Fall ein Haken und auf der anderen Seite ein Haken mit Verlängerungsschnur
eingesetzt (Abb. 2). Um bei dem kurzen Tau unschöne Verknotungen zu vermeiden, sollte man einen
Kreuzknoten anschlagen. Wenn man das Fadenende aufeuchtet, hält die erste Schlaufe so lange, bis
die zweite geschlagen ist. Das Wicklungsende wird wie gehabt mit Sekundenkleber festgelegt. Um
einen unschönen Aufbau zu vermeiden, ist die Wickelrichtung zu beachten (Abb. 3).
Abb. 4: Formen der Kugelrahmen |
Abb. 5: Maßskizze. Berechnung: tg 30° 1 x;
also x = 1 : tg 30° = 1 : 0,577 = 1,75
Seitenlänge = 6 + 1,75 + 1,75 = 9,5 mm
H = Halterichtung, D = Drehrichtung |
 |
|
 |
Kanonenkugellagerung |
-.- |
|
- Zum Eingrenzen der Kugeln hat man sich meist eines einfachen Rahmens bedient (Abb. 4). Die
Herstellung der Form "b" schließt die Form "a" mit ein. Der Kugeldurchmesser beträgt bei einem
Modell von 1:40 ca. 2 mm (gibt es bei Kugellagerkugeln). Die Herstellung läuft wie folgt ab: Das
Erste ist wie überall die Anfertigung einer Maßskizze (Abb. 5).
- Alle Stücke ablängen mit 1 mm Zugabe. Die "kluge" Methode, gleich die Schrägen zu sägen und
dabei beim zweiten Schnitt auch gleich die erste Seite des nächsten Stückes zu erzeugen,
funktioniert nicht. Das liegt an der zu großen Masse des abfallenden Stückes.
- Die erste Seite schrägt man auf dem auf Abb. 6 dargestellten Schlitten, bestehend aus einer
5mm-Platte mit Anschlagleisten. Das Werkstück muß beim Sägen gegen den Anschlag gedrückt werden.
Die Maschine ist schon beim ersten Schnitt auf Fertigmaß eingestellt.
- Wenden und die zweite Seite sägen.
- Das Zusammenkleben der drei Leisten wird erleichtert durch zwei in einem Winkel von 60 Grad
aufgeklebte Anschlagleisten.
- Den Rahmen auf 0,05-mm-Blech aufkleben und ringsherum beschneiden.
- Zum Schwärzen der Kugeln nimmt man ein beidseitig klebendes Klebeband, klebt die Kugeln mit
etwas Abstand auf und besprüht sie mit mattem schwarzem Lack.
- Damit die Kugeln nicht beim nächsten Sturm aus dem Rahmen springen, bestreicht man den Boden
vor dem Einlegen ganz leicht mit Zweikomponentenkleber.
|
 |
Herstellung von Bottich, Eimer und Faß |
-.- |
|
Die Fertigung dieser Holzbehälter bringt uns wieder mit alter Handwerkskunst in Berührung. Bei
starker Anlehnung an die Kunst des frühen Küfermeisters nehmen wir uns doch die Freiheit zu
Vereinfachungen, einmal bei der Ausführung an sich und zum Zweiten bei den
Fertigungsvorgängen.
Abb. 6: L = Längsanschlag;
A = Werkstückanlage;
D = manueller Druckpunkt |
Abb. 7: Bottich, Eimer, Faß |
|
 |
Bottich und Eimer |
-.- |
|
Diese beiden Teile unterscheiden sich nur dadurch, daß der Boden bei dem einen in den großen
Durchmesserbereich und bei dem anderen in den kleinen eingesetzt wird. Außerdem muß bei den
Bottichen mit je zwei verlängerten Brettern gerechnet werden. Fertigungsablauf der Dauben (so
nennt man die Seitenbretter):
Aus den auf Abb. 7 angegebenen Maßen ergibt sich folgende Rechnung mit den daraus hervorgehenden
Parametern:
Winkel der Stabfugen (Paßbereich der Seitenbretter - Abb. 8):
Winkel 360 Grad:
16 = 22 Grad 30 Minuten, 22 Grad 30 Minuten: 2 = 11 Grad 15 Minuten = Sägeschräge.
Abb. 8:
Fugenwinkel der Dauben.
Sägeeinstellung 11°15' |
Abb. 9:
Verjüngungswinkel:
tg alpha = 0,2 : 10 = 0,02 = 1,2° |
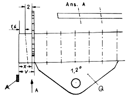
Abb. 10, Op. 3:
Sägen von jeweils zwei Dauben.
x = 2 + 1,6 + 0,3 = 3,9;
v = x + 0,3 = 4,2;
Q = Queranschlag;
A = Vorschubanschlag |
Verjüngungswinkel (Abb. 9):
Daubenbreite a = 10 mm x 3,14 = 31,4 mm; 31,4 mm: 16 = 2 mm;
Daubenbreite b = 8 mm x 3,14 = 25,12 mm, 25,12 mm: 16 = 1,6 mm;
tg alpha = 0,2: 10 = tg 0,02 = 1,2 Grad.
Sägen von Streifen, 10 mm breit und 0,8 mm dick, die Länge entsprechend der benötigten Stückzahl
(12 mm breit für Dauben mit Handgriff). Die Faserrichtung ist quer zur Streifenlänge.
Sägen am Queranschlag auf 11 Grad 15 Minuten x 1,2 Grad; je zwei Stück bei gleicher Einstellung.
Der Vorschub "v" beinhaltet zwei Sägebreiten, also 2 + 1,6 + 2 Sägebreiten (Abb. 10).
Sägen am Längsanschlag mit dem Schlitten auf 11 Grad 15 Minuten x 1,2 Grad. Schlittenanschlag 2,4
Grad. Das Werkstückpaar wird gegenüber Schritt 3 auf die andere Seite gelegt. Das Ergebnis jeden
Schrittes sind zwei Werkstücke. Der auf Abb. 11, Schritt 4 dargestellte Schlitten besteht aus
einer 3 mm dicken Grundplatte T.
Abb. 11: Teilen der Daubenpaare.
L = Längsanschlag |
Abb. 12: Dauben aufkleben und beschneiden Durchmessern |
Abb. 13:
Durchmesserkegel mit numerierten
Markierungen und zugeordneten |
Abb. 14:
Boden einlegen. |
Abb. 15:
Formvorrichtung |
- einer Anlageleiste T.
- und einem Haltebügel T.
- das Holzklötzchen T.
- ist dazu gedacht, eventuell mit einer Schraube Druck auszuüben. Der Schlitten muß unmittelbar
bis an die Säge herangebracht werden, um die extrem schmale Auflagefläche nicht weiter zu
verkleinern. Eine Verschiebung der Doppeldaube an der Schräganlage ermöglicht eine genaue
Mittenteilung. Ich habe mit mir selbst gewettet, daß der Winzling wegfliegt.
Ich hab' die Wette verloren, er bleibt liegen, nur mit Fingerdruck gehalten und ohne Gegenlage in
Vorschubrichtung.
Der Bogen in der Spannpratze, der sich zwangsläufig aus der Anbringung des Klötzchens ergab,
erwies sich als dreifacher Vorteil: 1. bringt er den Finger aus dem Sägebereich, 2. dient er der
Elastizität und 3. macht er eine Korrektur möglich. (Weitere Hinweise zum Sägevorgang siehe hier
bei der Fassherstellung, Op. 3.)
- Die Dauben auf ein Klebeband drücken, beschneiden.
- Runddrücken und Sekundenkleber im Innenraum verstreichen, zusammenrollen und umwickeln (Abb.
12).
- Die Herstellung der Ringe ist in "Schiffsschmied" beschrieben (siehe hierzu auch Fertigung
eines Ankerstockes", Kap. "Lötsyndrom"). In jedem Fall sollte man sich einen konischen Holzdorn
drechseln, der alle Durchmesserbereiche abdeckt und den man mit feinen Markierungen versieht und
beziffert. Unter diesen Ziffern w dann der jeweilige Durchmesser außerhalb aufgeschrieben (Abb.
13). So besteht jetzt die Möglichkeit, den abgelängten Streifen der entsprechenden Stelle zu
löten. Wer eine Hartlöteinrichtung besitzt, sollte sich das unter "Lötsyndrom" beschriebene
Verfahren mit dem Lötkügelchen am dünnen Draht Eigen machen. Durch die Verwendung des Dorns weiß
man um den genauen Durchmesser des Ringes und kann einen neuen entsprechend kleiner oder größer
ausführen (die nicht passenden legt man zurück und probiert sie an der nächsten Stelle.
- Aufdrücken der drei Halteringe mit den Fingernägeln. Die Montage ohne Leimzugabe wie bei dem
nachfolgenden Fuß ist kläglich daran gescheitert, daß der zuerst montierte, Halt gebende
Mittelring dem großen den Weg versperrte.
- Bohren beider Griffbohrungen.
- Das Eindrücken des Bodens mit Einlegen einer Abstandsplatte (Abb. 14).
Abb. 16: Faßdaube, Schnitt 1 und 2.
F = Führungsstück, U = Unterlage |
Abb. 17: Faßdauben aufkleben
Abb. 18 (links): Montagering
Abb. 19: Die vier Hilfsstützen "H" bei der Montage des zweiten Deckels |
|
 |
Faß |
-.- |
|
Der grundlegende Unterschied zur Herstellung beim Vorbild besteht darin, daß wir hier den
spannungsgeladenen Biegevorgang und die unmögliche Formgebung jeder einzelnen Da umgehen, indem
wir den Daubenrohling vor dem Sägen und der Seitenbearbeitung biegen.
Der Ablauf:
- Sägen von Streifen.. 10,5 cm breit, 0,8 mm stark und ca. 50 mm lang (mit Rücksicht auf die
nachfolgend benötigte Vorrichtung nicht wesentlich länger).
- Der Versuch, den eben erwähnten Biegevorgang mit links zu erledigen, geht scheußlich daneben.
Hier bedarf es einer Vorkehrung. Ein Holzklotz von 50x50x35 mm und ein Stück Rundmaterial oder
ein Rohr sind schon alles. Der Klotz wird durchbohrt (9 des Bohrers ca. 22 mm) und dann geteilt.
(Das Abfallstück wird bei Op. 5 dringend benötigt.) Die Bohrung ist im Durchmesser um ca. 1 mm
größer als der Dorn. Der eigentliche Biegevorgang beginnt damit, daß der Block so positioniert
wird, daß er mit einer Schraubzwinge zu erreichen ist. Der zehn Minuten lang gewässerte Streife
wird jetzt in die Nute gelegt, der auf der Herdplatte erwärmte Dorn obendrauf, und die Zwinge
macht dann den Rest (Abb. 15). Fünf Minuten sollte man der ganzen Biegechose schon zum Erkalten
lassen. Die gebogene Leiste, die meist etwas in der Holzform klebt, wird von der Längsseite her
mit einem scharfen Messerchen abgehoben.
- Zum Sägen der Dauben bleibt die Sägestellung auf 11 Grad 15 Minuten. Der Queranschlag wird
auf 90 Grad eingestellt. Der Trick mit dem je Schritt ein Stück" läßt sich hier wegen der Biegung
nicht durchführen. Also werden hier zwei Schnitte pro Werkstück ausgeführt: Schnitt 1: erste
Seite anschneiden; Schnitt 2: Wenden, Werkstück auf Führungsstück vorschieben bis zum Anschlag
mit dem Maß 2 mm (Abb. 16). Das Führungsstück wird aus dem Abfallstück der Formvorrichtung
zurechtgeschnitten. Während sich alle übrigen Sägeoperationen mit einem 1 mm dicken
Metall-Kreissägeblatt bzw. einem kleinen Widia-bestückten Blatt bewerkstelligen lassen, tut's bei
den Dauben nur ein 0,3 mm dickes Metall-Kreissägeblatt, und das muß dann noch so flach wie
möglich eingestellt werden, damit die Zähne nicht von oben in das Werkstück schlagen.
- Auf Klebeband auflegen und zusammenrollen (Abb. 17).
- In den Montagering einsetzen. Die Oberseite wird mit einem konischen Dorn ausgerichtet.
Entfernen des Klebestreifens im oberen Bereich und Feststellen des Durchmessers im Mittelbereich
(Abb. 18)
- Streifen entsprechend ablängen, rund biegen und löten (zur Ringherstellung siehe oben,
Schritt 7).
- Aufstreifen des Mittenrings. Dieser Ring muss stramm sitzen, schließlich ist er das
Hauptbindungselement. Dann wird der obere Ring und nach der Entnahme aus der Montageplatte der
untere Ring aufgedrückt.
- Abmessen des oberen Innendurchmessers, Herstellung des Bodens und Einsetzen. Dieser Vorgang
ist problemlos beim ersten Boden, weil man von der Gegenseite zurückdrücken kann. Bei der zweiten
Seite schafft man sich eine Gegenlage durch den Einbau von vier gleichlangen Stützen (Abb. 19).
Eine weitere Möglichkeit wäre, wie beim Vorbild eine Rille einzuarbeiten, aber das sollte man
sich nicht antun.
Abb. 20:
Fertigungsskizze für die Riemen
|
 |
Bootsriemen |
-.- |
|
Auf den Gedanken, daß es sich hier um ein Befestigungselement handelt, könnte nur eine
Landratte kommen. Für die Frage jedoch, was ein Paddel mit Geschützzubehör zu tun hat, ist die
eindeutige Antwort: "Nichts". Der Grund dafür, daß dieses Thema hier reingerutscht ist, war die
Vorstellung, daß die Paddel mal so zwischendurch entstehen sollten. Daß aus dem "mal so
zwischendurch" aber nichts geworden ist, dürfte aus folgender Beschreibung unschwer zu erkennen
sein.
Operationsfolge (die werkstückspezifischen Maßangaben dienen wie immer der besseren
Orientierung - Abb. 20):
- Achtkant sägen auf die bekannte Weise.
- Drechseln, d.h. Blattbereich auf D = Blattbreite x 1, 1 (Begründung: durch die Biegung kommt
das Blatt in schmalere Bereiche). Zur Einrichtung siehe "Gießverfahren ... für Anker und
Geschützrohre", Abb. 4.
- Umspannen und zentrieren.
- Drechseln bis Blattbeginn auf d = 4,9 (3,5er-Vierkant x 1,4).
- Drechseln d = 3,5 bis Blattbeginn mit Übergang im Blattbereich, einstechen mit 2,4 mm und 1,8
mm Durchmesser, glätten mit Feile und Schmirgel und abstechen des Zentrierzapfens.
- Erste Vierkantseite von Hand schmirgeln auf Maß 3,5 mm x 1,2 = 4,2 mm. (Den ersten Schnitt zu
sägen ist möglich, aber gefährlich für Finger und Werkstück.)
- Die verbliebenen drei Seiten sägen.
Erster Schnitt auf 4,2 mm, zweiter Schnitt auf Fertigmaß mit zusätzlichem Distanzstück.
- Blattbereich sägen auf Stärke 3,5 mm + 0,2 mm = 3,7 mm.
- Den Durchmesserbereich 3,5 mm kannelieren. Die Fertigung der Kannelüren ist beschrieben in
"Nagelbänke in Perfektion" in der MODELLWERFT 2/2000. Eine Vereinfachung kann erreicht werden,
indem man auf die Abstandsleisten verzichtet, den Kugelfräser direkt auf Tiefe einstellt und den
Schlitten unter leichtem Druck einige Male hin- und herführt.
- Blatt manuell modellieren.
- Krone für das Ruderblatt.
Der Schelm im Nacken des Autors wollte Ihnen ursprünglich die Krone als Schnitzwunder
unterjubeln. Aber dann hatte doch der edle Modellbauerkern gesiegt. Und so ist sie
entstanden:
- Der erste, aber der einzige kritische Schritt ist die Beschaffung einer alten Münze mit solch
einer Krone.
- Dann wird der Kronenbereich mit einem Knetgummiring umgeben.
- Wie man jetzt eine Form erzeugt, indem man den kleinen Teich mit Polyesterharz füllt, ist
klar.
- Das Ausgießen geschieht mit einem schwachen Tropfen, der mit
einer Nadel an den Rand gekitzelt wird. Der leichte Dom, der sich automatisch bildet, wird mit
einer Kugel bei dem noch nicht ganz ausgehärteten Krönchen von hinten durchgedrückt, wodurch die
Krone etwas Volumen gewinnt.
Abb. 21:
Riemen mit Statussymbol
Wer jetzt enttäuscht ist, dem bleibt immer noch das Schnitzmesser.
Wie die Krone aussieht, zeigt Abb. 21 oben und das kleine Bild links.
<==
Günter Bossong