fib-03-08.gif bossong-00.gif fib-03-08.htm
06.2004


Vorwort Grätinge Sägen vom Block Leistenpaket Einstellung Ablauf Erweiterung Zusammenbau

erschienen in MODELLWERFT 03/97

Grätinge/Wendevorrichtung

Vorwort

Sparen wir uns eine Aufzählung von Teilen, die alle noch irgendwo angebracht werden müssen, wenn das Modell bereits in einem Zustand ist, daß man kaum noch wagt, das Prachtstück anzufassen. Sparen wir uns weiterhin eine Aufzählung der Positionen, in die das Modell hierzu gebracht werden muß.

fib-03-08-b01.gif
Abb. 01:
Der Stabmanipulator im Einsatz.

Solange der Rumpf noch kahl ist, ist die Unterbringung auf dem Schoß mit einem kleinen Kissen nicht das schlechteste. Mit der Mehrung der Details jedoch, die meist an den unpassendsten Stellen auftreten, wird die Handhabung immer schwieriger. Und wenn zum Schluß nur noch ein Plumeau hilft, das rohe Ei in die gewünschte Position zu bringen, tritt der Traum von einer Vorrichtung, in der das Modell in jeder nur erdenklichen Stellung fixiert werden kann, immer häufiger auf. Diese Traumvorstellung; nämlich einen Körper zu greifen, um ihn dann in zwei unabhängigen Kreisen um je 360 Grad schwenken zu können, scheint kompliziert und wird manchen davon abgehalten haben, hier eine Lösung zu suchen. Lösung heißt aber in diesem Falle weniger, eine Wendevorrichtung zu erfinden, als einen zu großen Aufwand zu vermeiden.

fib-03-08-b02.gif
Abb. 02:
Wendevorrichtung

Wenn man sich vorstellt, was bei einer Freihandwendung alles passieren kann, ist der nachfolgend geschilderte Aufwand, bestehend aus drei mickrigen Teilen und ein paar Schrauben, allemal gerechtfertigt. Darüber hinaus kann dieses Ding ein ganzes Modellbauerleben hindurch seine Dienste tun (siehe Abbildung 02).

Das Hauptteil ist ein Messingrohr mit 13-15 mm Durchmesser und einer Länge von zirka 60 cm. Es wird gehalten von einem gebohrten und geschlitzten Holzblock. Die Haltefunktion am Modell übernimmt der mit einer zusätzlichen Mutter versehene Standfuß. Die Umsetzung der hier beschriebenen Theorie in die Praxis ist auf Abbildung 01 zu sehen.

Die Befestigung der Wendevorrichtung, auch Stabmanipulator genannt, erfolgt a) mit einer Schraubzwinge auf der Tischplatte, b) am Tischbein mit Höhenverstellbarkeit oder c) an einer eigens hierfür installierten senkrecht stehenden Latte mit Bohrungen (siehe Abbildung 03).

Falls dem Autor zum Schluß ein paar Zeilen für Humor zugebilligt werden, hier der Vorschlag zu einer neuen Zeitrechnung; nämlich vor und nach der Wende(-vorrichtung).

Und jetzt, wo die Schwierigkeiten beim Wenden ausgeräumt sind, ist es nicht mehr so wichtig, ob eine Bugstrebe oder wie im nächsten Kapitel die Grätinge angepaßt werden müssen.

fib-03-08-b03.gif fib-03-08-b04.gif
Abb. 03:
Befestigungsmöglichkeiten der Wendevorrichtung
Abb. 04:
Konstruktionsüberlegungen zur Festigkeit der Grätinge.

Vorwort Grätinge Sägen vom Block Leistenpaket Einstellung Ablauf Erweiterung Zusammenbau
button4.gif Die Grätinge -.-   

So wie die Franzosen mit dem Wort Chanson ein ganz gewöhnliches Lied meinen, es bei uns jedoch eine besondere Vortragsart anspricht, so bezieht sich das Wort Gräting im Englischen (wo es herkommt) meist auf einen ganz normalen Gitterrost, während es im deutschen Sprachbereich ausschließlich ein ganz besonderes Schiffsteil bezeichnet.

Die Konzeption dieses Teils war von raffiniert ausgeklügelten Festigkeitsüberlegungen bestimmt (siehe Abbildung 04). Bei a) ist die Form gezeigt, die der Unbefangene ohne Zögern wählen würde: gleiche Holme in beiden Richtungen und gut und fest zusammenfügbar. Jedoch wären hierbei beide Holme für eine Belastung von oben geschwächt. Die in Querrichtung verlaufenden Holme (Q) durch die Einkerbung bis zur Mitte, die in der Längsrichtung (L) durch fast vorgegebene Bruchstellen. Die bei b) dargestellte und von den Alten bevorzugten Form bietet dagegen wesentlich höheren Widerstand. Während die Festigkeit der Leiste "L" nicht viel unter der bei a) gezeigten liegt, ist der Holm "Q" hier erheblich stärker.

Die Herstellung der Grätinge unterschied sich durch fast nichts von der Fertigung anderer Bauteile. Nichts wie Knochenarbeit. Anders bei den Grätingen der damals üblichen Admiralitätsmodelle. Während sich bei den Originalteilen die Schiffszimmermannsarme bis zu den Schultern im Einsatz befanden, waren es hier die Fingerspitzen, aber das viele, viele Stunden und meist mit Werkzeugen, die kaum unseren heutigen Präzisionsvorstellungen entsprechen. Aber erstens hatte man damals mehr Zeit (man brauchte noch keine Computer zu bedienen), und zweitens wurde bei Modellen meist etwas beim Maßstab geschwindelt. Zeit allerdings muß sich der moderne Modellbauer auch nehmen. Was aber den Maßstab anbetrifft, wollen wir es etwas genauer nehmen als die Alten.

Es sei mal vorausgesetzt, daß ein Grätingsholm am Original eine Breite von 60 mm hat. Bei einem Maßstab von 1:50 ergibt sich für den Modellholm eine Breite von 60: 50 = 1,2 mm. Und genau da, nämlich im Minimalbereich liegt der Seehund begraben.

Und jetzt wird's ernst. Aber ehe das behandelt wird, was eigentlich die Gräting ausmacht; nämlich die vielen nebeneinander liegenden Nuten beziehungsweise Rillen für das Schneiden der Einzelleisten notwendigen Verringerung der Sägespaltbreite. Bezüglich der Reihenfolge der Bearbeitung bieten sich zum Einbringen der Rillen zwei Möglichkeiten: 1. Sägen der Rillen am Block; 2. Sägen der Rillen (Nuten) in die gesägten Leisten.

fib-03-08-b06.gif fib-03-08-b07.gif
Abb. 06:
Methode A: Nuten sägen mit Abstandsleiste.
A1: Sägeblattdicke = Nutenbreite; Abstandsleiste L
A2. Sägeblatt ist dünner als Nutenbreite; Abstandsleiste 1 und 11.
Abb. 07:
Methode B: Nuten sägen mit Zustellschraube.
Zur Schnitterweiterung Blech x zwischen Werkstück und Anschlag für Arbeitsgang 2a und 3a.

Vorwort Grätinge Sägen vom Block Leistenpaket Einstellung Ablauf Erweiterung Zusammenbau
button4.gif 1. Sägen vom Block -.-   

Die Bemaßung des Blocks setzt sich zusammen aus der Länge der Holme (a) mal etwa der gleichen Strecke für eine bestimmte Anzahl abzusägender Leisten (b) mal der Höhe der Holme für die Dicke (c). Der Faserverlauf in liegt in Richtung der Holmlänge, also quer zur Rillenrichtung (siehe Abbildung 05). Wenn es gelingt, die Einzelleisten vom Block abzusägen, ohne daß die Ränder der Zähnchen aussplittern, ist diese Art der Fertigung zu bevorzugen.

fib-03-08-b05.gif
Abb. 05:
Vorbereiteter Block
==>

In jedem Falle muß die geschlitzte Seite beim Sägen nach oben gerichtet sein. Außerdem wächst die Erfolgsrate mit der Dichtigkeit des Holzes. Buchsbaum wäre also für Leisten mit geringer Stärke (1-1,5 mm) nicht schlecht.


Vorwort Grätinge Sägen vom Block Leistenpaket Einstellung Ablauf Erweiterung Zusammenbau
button4.gif 2. Sägen des Leistenpaketes -.-   

Für Pechvögel bleibt immer noch die zweite Möglichkeit. Hier werden die fertig geschnittenen Leisten mit Klebeband zu einem unter "1" beschriebenen Block zusammengeklebt und dann geschlitzt. Diese Vorgehensweise ist zwar etwas diffiziler, dafür ist aber die Gefahr des Aussplitterns beseitigt. Jedoch ist hierbei die Möglichkeit, eine Nute mit dem 2. Schnitt zu verbreitern, auszuschließen, da die Leisten verrutschen können. Hier hilft nur das passende Sägeblatt.

Zum Schlitzen selbst sind in der Folge drei Möglichkeiten aufgezeigt:
Methode A ist die einfachste, ohne Hilfsmittel, außer natürlich der kleinen Kreissäge mit Metallsägeblatt.
Methode B mit dem Einsatz einer Feinverstellung.
Methode C mit der Verwendung einer einfach zu erstellenden Vorrichtung.

Methode A: Nuten sägen mit Abstandsleiste
Für diese einfachste Form des Taktens ist nur ein Abstandsstück nötig (10 mm hoch, so breit wie die Teilungsstrecke und zirka 100 mm lang). Und das sind die Abläufe:

A1) Sägeblattdicke = Nutenbreite (siehe Abbildung 06)

  1. Vorbereitetes Werkstück an Säge anlegen und Längsanschlag beistellen.
  2. Werkstück vor Säge bringen und, nachdem das Abstandsstück eingelegt, ist 1. Nute sägen.
  3. Abstandsstück wegnehmen, Längsanschlag bis an Werkstück vorbringen, Abstandsstück einlegen und nächstes Schnitt sägen.

A2) Sägeblattdicke liegt unter Nutenbreite.
Es gibt keinen Weg, um mit einer dickeren Säge einen schmäleren Schlitz zu sägen. Sollte aber die Werkzeugkiste ein Sägeblatt hergeben, dessen Stärke etwas unterhalb der zu sägenden Nute liegt, geht man den einfachsten Weg der Welt: pro Nute zweimal sägen. Hierzu benötigt man ein zweites Abstandsstück, dessen Breite um die Differenz zwischen der Breite des vorhandenen Sägeblattes und der Nutenbreite reduziert ist. Der Ablauf wird damit ein wenig umfangreicher. Nach jedem Sägeschnitt wird das Abstandsstück 1 gegen das Abstandsstück 2 ausgetauscht und ein zweiter Schnitt ausgeführt.
Der Ablauf im einzelnen: 1. wie Arbeitsgang 1 unter A1
2. wie Arbeitsgang 2 unter A2
2a. Abstandsstück 1 gegen Abstandsstück 2 austauschen und 2. Schnitt ausführen.
3. wie Arbeitsgang 3 unter Al 3a, wie Arbeitsgang 2a
Diese Art der Taktung ist zwar mit sehr geringem Aufwand durchzuführen, ist aber sehr vom Gefühl abhängig, weil der Beistelldruck vom Sägeblatt aufgenommen werden muß.

Methode B: Nuten sägen mit Zustellschraube

Diese Art der Werkstückverstellung ist schon etwas stabiler, bringt aber Fehlerquellen durch die auch hier notwendigen Verstellungen des Längsanschlags. Der Ablauf ist ähnlich dem bei Methode A gezeigten, jedoch wird der Beistelldruck hier nicht vom Sägeblatt aufgenommen, sondern vom Längsanschlag (siehe Abbildung 07).

  1. Einlegen des Werkstückes, bei- und feststellen von Anschlages und Stellschraube.
  2. Lösen des Anschlages, Abstandsstück zwischen Anschlag und Schraube legen und 1. Schnitt sägen.
  3. Abstandsstück weg, Stellschraube beidrehen, Anschlag lösen, Abstandsstück zwischenlegen, Anschlag festziehen und 2. Schnitt sägen usw.

Bei notwendiger Verbreiterung der Nute ist es bei dieser Art der Zustellung am einfachsten, den zweiten Schnitt pro Einstellung (2a/3a) mit einem zwischengelegten Blechstreifen auszuführen (siehe Abbildung 07, Einzelheit x). Die Dicke des Streifens ergibt sich auch hier aus der Differenz zwischen Sägeblattstärke und Nutenbreite.

fib-03-08-b08.gif
Abb. 08:
Vorrichtung für Methode C und das erzielte Ergebnis.
==>

Methode C: Nuten sägen mit Vorrichtung

Während man die Methoden A und B als einen gangbaren Weg bezeichnen könnte, handelt es sich hier um eine exakte Fertigung. Wie aus der Überschrift hervorgeht, brauchen wir noch eine Vorrichtung. Dieser kleine Schlitten, der auf Abbildung 08 zu sehen ist, ist schon alles. Er braucht "nur" noch auf der richtigen Maschine bei der richtigen Einstellung richtig eingesetzt zu werden.

Die Herstellung des Schlittens erfolgt nach der Zeichnung auf Abbildung 09. Er besteht aus einer geteilten Grundplatte (Teil 1), wovon ein Teil mit den Querhölzern (Teil 2) verleimt ist, während das kleinere Teil (Teil la) mit zwei Schrauben befestigt ist, also abnehmbar bleibt. An die Stirnseite des größeren Teils ist ein Messingblech (Teil 3) von zirka 10 x 15 mm angeschraubt. Die Dicke entspricht der jeweiligen Nutenbreite und damit der Sägeblattdicke. Das wichtigste Merkmal des Schlittens ist die gleichmäßige Dicke der Bodenplatte, weil sich hieraus die gleichmäßige Tiefe der Nuten ergibt.

Zum Einsatz einer Vorrichtung gehört ein Rüstvorgang. In diesem Falle heißt das, Anschrauben des passenden Abgreifbleches (Blechstärke = Nutenbreite) und Einstellen der Teilung. Zum Anschrauben des Abgreifbleches muß die kleine Bodenplatte (Teil la) abgeschraubt werden. Die Teilung ist der Abstand von Nute zu Nute oder Nutenbreite und Nutenabstand (siehe Abbildung 11). Sie wird bestimmt durch die Entfernung von Sägeblatt zu Abgreifblech oder Teilungsblech (Teil 3).

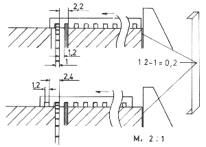
Die Teilung ist also einstellbar durch Verschieben des Längsanschlags. Die Teilungsstrecke läßt sich mit der Schieblehre abmessen. Die Nutenbreite n ergibt sich aus der Höhe der Säge über der Grundplatte. Es ist wichtig, daß die Höhe des Teilungsbleches mindestens 0,1 mm unter der Sägehöhe liegt, sonst kommt es zu einer Anhebung Werkstückes, und die Rillen werden von Schnitt zu Schnitt flacher. Der eigentliche Ablauf läßt sich jetzt am besten an Hand eines Beispieles demonstrieren. Gewünschte Maße: Teilung = 2,4 mm; Nutenbreite = 1,2 mm; Nutentiefe = 1 mm; vorhandenes Sägeblatt = 1 mm dick.

fib-03-08-b09.gif fib-03-08-b10.gif
Abb. 09.
Fertigungszeichnung für die Vorrichtung bei Methode C
Abb. 10:
Methode C. Nuten sägen mit Vorrichtung.
1. Sägevorgang, Teilung 2,4 mm, Nuten breit 1 mm

Vorwort Grätinge Sägen vom Block Leistenpaket Einstellung Ablauf Erweiterung Zusammenbau
button4.gif 1. Sägevorgang, Einstellung Ablauf (Abbildung 10) -.-   
  1. Anlegen des Brettchens an das Teilungsblech (Teil 3) und an den Querholm des Schlittens (Teil 2) und Ausführung des 1. Schnittes entlang des Längsanschlags.
  2. Gesägte Nute auf Teilungsblech aufdrücken und nächste Nute sägen.
  3. Brettchen anheben, nächste Nute abgreifen, sägen usw.

Dieses Verfahren hat zwar keine potentielle Fehlerquelle, aber eine Eigenart. Wenn man zum Beispiel laut Plan auf einer bestimmten Strecke eine ganz bestimmte Anzahl von Nuten einzubringen hat, muß die Teilung genau stimmen. Durch das Abgreifen in der vorher gesägten Rille addiert sich jeder Fehler. Eine Ungenauigkeit von 0, 1 mm wird also nach der zehnten Nute schon zu einem Millimeter. Neben sorgfältiger Einstellung hilft hier ein Versuch mit einem neutralen Stückchen Leiste. Wenn das Maß einmal steht, ist der Schlitten unschlagbar.

Jetzt stimmt zwar die Teilung, aber nicht die Nutenbreite. Also wird der Schlitten um die Differenz zwischen Nuten- und Sägeblattbreite verrückt und der gesamte Sägevorgang wiederholt. Und das ist der Moment, wo man sich üblicherweise am Kopf kratzt, genau die Nute nämlich, die man zum Abgreifen braucht, ist gerade von der Säge verbreitert worden.

Oft sträubt sich unser für "große Gedanken" reserviertes Gehirn dagegen, das ganz Einfache zu tun. Das ist in unserem Falle die Umkehrung des Vorganges. Während die erste Schnittserie von links nach rechts durchgeführt wurde, takten wir jetzt ganz einfach von rechts nach links. Auf diese Weise kann immer die noch nicht erweiterte Nute als Aufnahme für die nächste dienen.


Vorwort Grätinge Sägen vom Block Leistenpaket Einstellung Ablauf Erweiterung Zusammenbau
button4.gif 2. Sägevorgang, Erweiterung der beim 1. Sägevorgang hergestellten Nuten -.-   

Einstellung: Die Strecke t wird von 2,4 auf 2,2 reduziert. Das geschieht, indem ein Blechstreifen von 0,2 mm zwischen Vorrichtung und Längsanschlag gelegt wird. Der Anschlag kann so in der Stellung des 1. Sägevorganges verbleiben. Ablauf (siehe Abbildung 12):

  1. Einlegen des vorgenuteten Brettes. Zweite Nute von links auf Teilungsblech drücken und erste Nute sägen.
  2. Dritte Nute in Teilungsblech und zweite sägen usw.

Wie auf Abbildung 12 zu erkennen ist, ist das Maß 2,4, welches normalerweise die Teilung repräsentiert, auf 2,2 reduziert, ohne daß sich die Teilung von 2,4 ändert. Das rührt daher, daß bei diesem Sägevorgang keine Taktung stattfindet, sondern die jeweils noch vorhandene Nute der alten Teilung als Aufnahme für die Nacharbeit an der nebenheizenden Nute gebraucht wird.

fib-03-08-b11.gif fib-03-08-b12.gif
Abb. 11:
Grätingschlitten rüsten
Abb. 12:
Methode C. Nuten sägen mit Vorrichtung.
2. Sägevorgang, Teilung 2,4 mm, Nutenbreite 1,2 mm.

Vorwort Grätinge Sägen vom Block Leistenpaket Einstellung Ablauf Erweiterung Zusammenbau
button4.gif Zusammenbau -.-   

Das Zusammenfügen von Einzelteilen hat etwas Beruhigendes. Wenn die dann auch noch passen und zu allem noch selbst hergestellt sind, kommt tiefe Befriedigung hinzu. Und das ist dann die Belohnung für die vorher geleistete Kleinstarbeit. Aber auch hier wieder der Asteriskus. Um einen sauberen Zusammenbau zu erreichen ist folgendes zu beachten:

  1. Um eventuellen Taktunterschieden und damit unterschiedlichem Nutenabstand entgegenzuwirken, werden die genuteten Holme auf einer Seite erkennbar gemacht und so montiert, wie sie gefertigt wurden (siehe Abbildung 08).
  2. Zum Ausrichten der genuteten Leisten werden zwei Überzählige quer über die vorher in Reih und Glied gelegten Nutleisten gelegt und eingedrückt (das geht nur, wenn Nutenbreite gleich Nutenabstand ist). Hierdurch werden sowohl der Holmabstand als auch die Winkellage eingestellt.

Nachdem die Längsleisten in alle übrigen Nutenfluchten eingeleimt sind und der Leim abgebunden hat, können die beiden Ausrichtholme herausgehoben und durch Längsleisten ersetzt werden.


Günter Bossong

Seitenanfang button7.png